本案主要是打造出一个轻侘寂极简风的居住空间,通过丰富的或弧面或起伏或碰撞的设计语言,展现出浓浓的哲学性并满足内在精神需求。
晴晖满虚室,一水含自足。
心明身宴闲,境寂谁寻逐。
----宋代 徐嘉言
轻侘寂的热爱代表着90后对本真的追求再次回归,极简是表现生活态度及艺术的一种风格,本意在于极力追求简约,并且拒绝违反这一形态的任何事物。





色调温暖,柔和的线条让空间变得柔美,回归生活本质,看似平淡,却能蕴藏美的无限隽永。


整体空间以奶油色米灰的暖色调为主,没有过于强烈的冲击感,搭配木饰温润木色和小面积黑色块。氛围通过材料的纯粹、空间的艺术和审美的理想性打造。



用质朴取代奢华,展示着原生态质朴的美感。为了使空间视觉上更加柔和纯粹,适量应用曲面弧度十分流畅,不同于直线造型的转折死板,丝滑的造型更加优美。





通过触感去达到极度舒适的状态,一切与身体相接触的材质或器物,甚至是阳光与温度,都将与肌肤产生美妙的互动。米白、厚木色作主调,呈现着内敛优雅的底蕴,又于平淡生活中象征着不会堙灭的热爱与理想。




在家具、器物的选择上,无论是原木、布艺、陶罐、都将遵循精致、自然、低饱和度的质感关系。所有的灯具、家具和软装都精致而恰到好处,极简的搭配,斑驳墙面光影的视觉观感,有随时随地置身艺术馆的即视感,营造朴素安静的氛围。在光线的搭配下呈现温暖治愈的感觉,把平凡普通的日子过得温馨细腻一些。



有一种和谐,叫做默不作声。有一种美学,叫不完满,有一种家居风格,它不追求规整华丽,而是追求不完整、朴素无华,天然质朴!


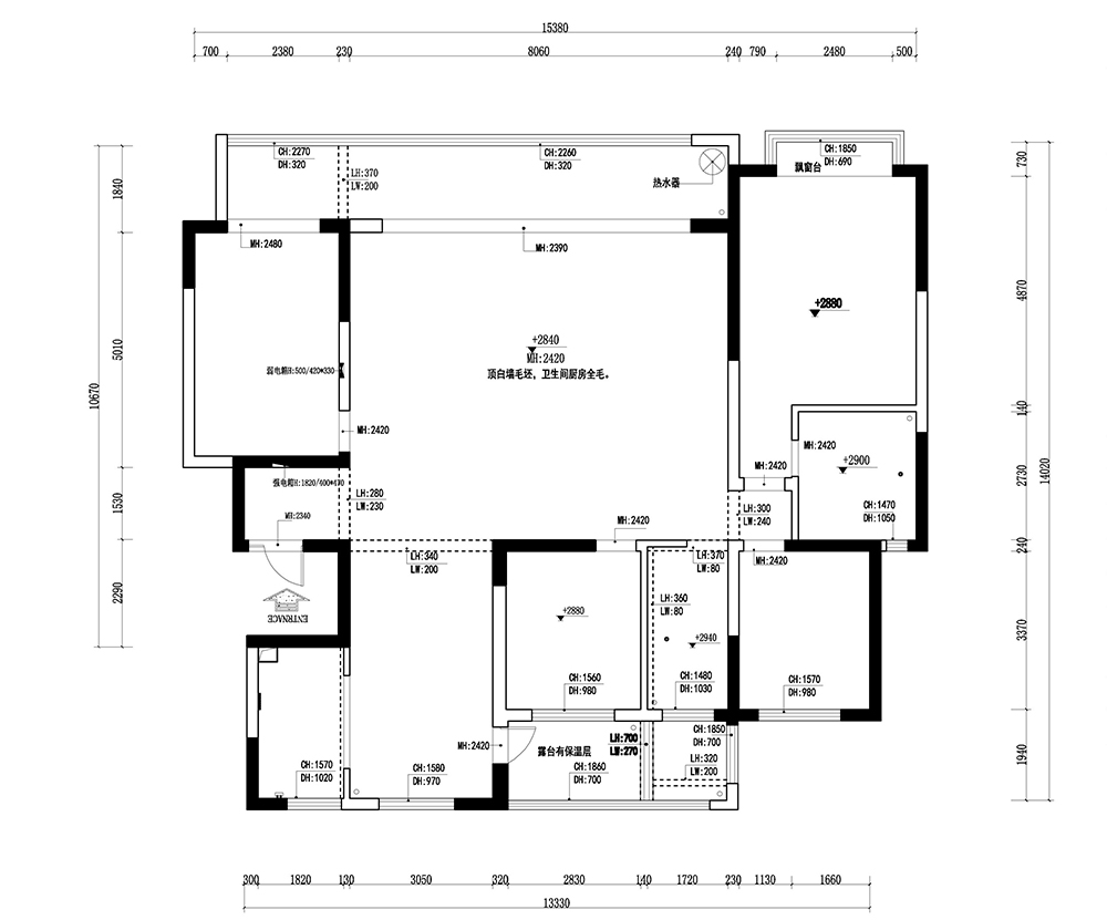
原始结构图

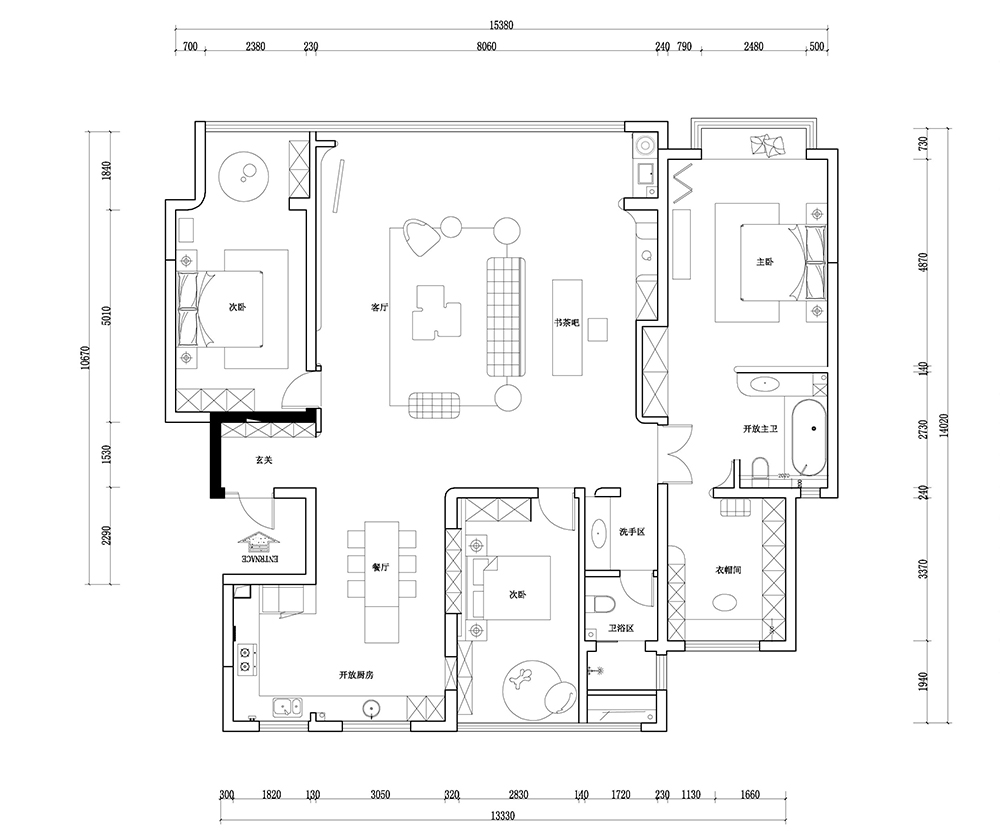
平面设计图
你可能也喜欢